Traumhafte Gartenwohnung in Teesdorf: 3 Zimmer, Terrasse– Ihr neues Zuhause!
2524, Teesdorf
3
Zimmer
Bad
2
Parking
79.78 m²

Überblick

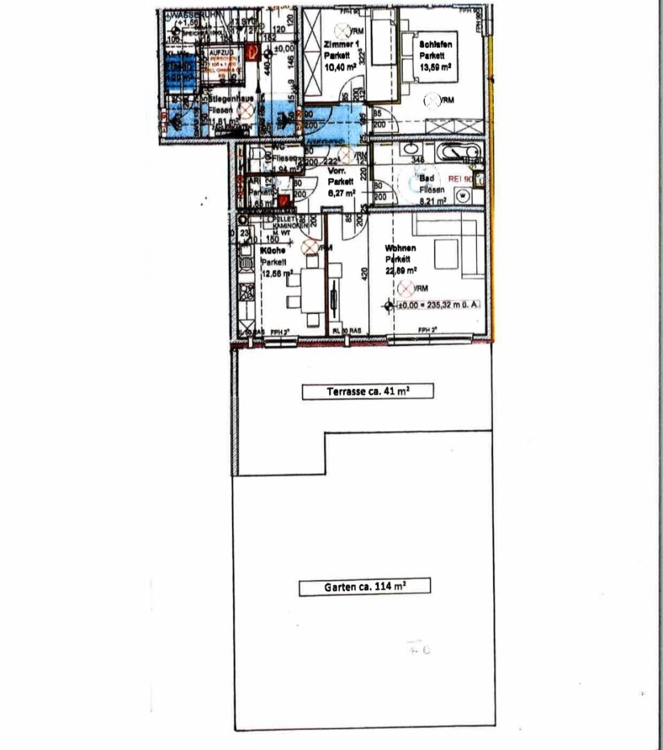
Willkommen in Ihrem neuen Zuhause in der idyllischen Gartenwohnung in 2524 Teesdorf, Niederösterreich! Diese wunderbare Immobilie bietet Ihnen die perfekte Kombination aus modernem Wohnkomfort und der Ruhe des Landlebens – der ideale Ort für Familien, Paare oder alle, die den Stress der Stadt hinter sich lassen möchten. Mit einer großzügigen Wohnfläche von 79,78 m² erstreckt sich diese lichtdurchflutete Wohnung über drei ansprechend gestaltete Zimmer. Jedes Zimmer ist durchdacht angelegt und bietet Ihnen ausreichend Platz, um Ihre persönlichen Wohnträume zu verwirklichen. Ob als gemütliches Schlafzimmer, stilvolles Arbeitszimmer oder einladendes Gästezimmer – hier finden Sie die Freiheit, Ihre individuellen Wünsche zu realisieren. Ein Highlight dieser Wohnung ist die herrliche Terrasse, die in Richtung Süden ausgerichtet ist. Genießen Sie die warmen Sonnenstrahlen und entspannen Sie in Ihrem eigenen kleinen Paradies. Der angrenzende Garten bietet Ihnen zudem die Möglichkeit, frische Luft und Natur direkt vor der Tür zu erleben. Hier können Sie die Abende mit Freunden und Familie ausklingen lassen oder einfach nur die Stille genießen. Die Wohnung ist belagfertig und bietet Ihnen alle modernen Annehmlichkeiten. Die Glasfaseranbindung sorgt für schnelles Internet, ideal für Homeoffice oder zum Streamen Ihrer Lieblingsserien. Zudem ist die Wohnung mit einer kontrollierten Wohnraumlüftung ausgestattet, die für ein angenehmes Raumklima sorgt und die Luftqualität jederzeit auf einem hohen Niveau hält. Zu Ihrem neuen Zuhause gehört außerdem zwei Stellplätze, die Ihnen und Ihren Gästen ausreichend Platz bieten. Nie wieder Parkplatzsorgen – hier parken Sie bequem und sicher. Die Lage dieser Gartenwohnung in Teesdorf ist ebenfalls unschlagbar. Die gute Verkehrsanbindung durch Bus und Bahnhof ermöglicht Ihnen eine schnelle Erreichbarkeit der umliegenden Städte und Regionen. In unmittelbarer Nähe finden Sie alles, was Sie für den täglichen Bedarf benötigen: Arzt, Apotheke, Kindergarten, Schule, Supermarkt und Bäckerei sind bequem zu Fuß oder mit dem Fahrrad erreichbar. Teesdorf selbst besticht durch seinen charmanten ländlichen Charakter und bietet Ihnen die Möglichkeit, die Natur in vollen Zügen zu genießen. Ob ausgedehnte Spaziergänge, Fahrradtouren oder einfach nur die frische Luft – hier sind Sie mitten im Grünen und dennoch gut angebunden. Nutzen Sie die Chance, Eigentümer dieser attraktiven Gartenwohnung zu werden und genießen Sie die Vorzüge eines modernen Lebens im Einklang mit der Natur. Mit einem Kaufpreis von nur 350.000,00 € ist dies eine einmalige Gelegenheit, die Sie sich nicht entgehen lassen sollten! Vereinbaren Sie noch heute einen Besichtigungstermin und lassen Sie sich von dieser traumhaften Immobilie begeistern! Ihr neues Zuhause wartet bereits auf Sie. Diese charmante Gartenwohnung in 2524 Teesdorf, Niederösterreich, besticht durch ihre ideale Lage. Nur wenige Schritte entfernt finden Sie Arzt, Apotheke, Kindergarten und Schule – perfekt für Familien. Supermärkte, Bäckereien und eine Bank sind ebenfalls in der Nähe, was den Alltag erleichtert. Die gute Anbindung an öffentliche Verkehrsmittel, einschließlich Bus und Bahnhof, sorgt für eine bequeme Erreichbarkeit der Umgebung. Hier wohnen Sie zentral und dennoch ruhig!
Provisionsvereinbarung
3% des Kaufpreises zzgl. 20% USt.

Merkmale

Wohnung
3 Zimmer
79.78 m²
Terrasse/Balkon
Heizung: ZENTRAL

Standort

Wohnung

€ 350.000

Objekt-Nr.
2533/6779
Nehmen Sie Kontakt mit mir auf, um mehr über diese Immobilie zu erfahren.
Informationen anfordern
Ansprechpartner
Mag.(FH) Harald Grassler
Geschäftsführer
harald.grassler@ideal-real.com
+43 664 581 82 89